
Chata smrž 2
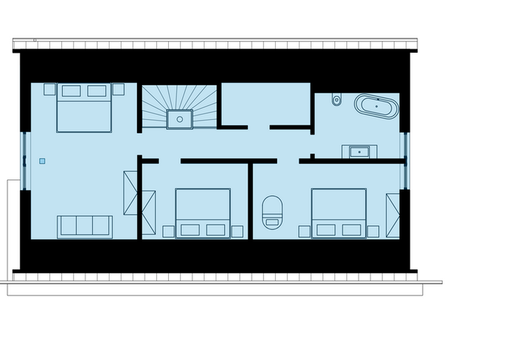
Nabízí kapacitu až 10 osob – 2x dvoulůžkové ložnice s postelí 180x200, 1 ložnice s dvoulůžkovou manželskou postelí 180x200 a 2 osoby na rozkládacím gauči. Další 2 osoby na rozkládacím gauči v obývacím pokoji. Po dohodě je možnost dětských přistýlek – snížené postele. Pro komfortní pobyt jsou k dispozici dvě koupelny – jedna s velkým sprchovým koutem a druhá s vanou, což zajistí pohodlí pro všechny hosty. V podkrovní horní ložnici najdete útulný dětský koutek – ideální místo pro hraní a zábavu vašich nejmenších.
Moderní dřevostavba s velkými prosklenými okny, saunou, koupacím jezírkem a vyhřívanou venkovní vířivkou. Nachází se na klidném místě uprostřed krásné přírody s možností mnoha zajímavých aktivit. Místo, kam se budete vždy rádi vracet.
V zimě, při větší sněhové nadílce, je vhodné počítat s nutností řetězů při příjezdu k chalupě.
Check-in od 15:00h
Check-out do 10:00h

Pro děti
Dětská jídelní židlička.
Dětská postýlky včetně matrace a ložní prádlo.
Nočník, sedátko na WC.
Venkovní hřiště s pískovištěm, dětským domečkem a houpačkou.
Dětský koutek

Pro dospělé
Možnost zakoupení moravských vín z domácí vinotéky.
Bylinková zahrádka.
Ohniště s posezením.
Venkovní posezení s výhledem na Tanvaldský Špičák.
Ubytování až pro 10 os.
Sauna a vířivka
18 km od Harrachova
Eco-Friendly Design
Vybavení a dispozice
Půdorys chaty

Galerie
Přijďte načerpat energii do chaty Smrž 2 – moderní útočiště v srdci Jizerských hor, kde se setkává komfort s přírodní krásou. Prohlédněte si naši galerii a nahlédněte do interiéru, který nabízí nejen styl, ale i útulnou atmosféru pro nezapomenutelné chvíle s rodinou. Užijte si venkovní prostory, relaxujte v přírodě a objevte místo, které se stane vaší oázou klidu a pohody.

Rezervace Smrž 2
Jak si zarezervovat termín:
V kalendáři níže můžete zkontrolovat obsazenost chaty Smrž 2. Zvolte si volný termín, který vám vyhovuje, a poté jej zadejte do formuláře spolu s datem příjezdu a odjezdu.
Pokud máte jiný požadavek, napište nám prosím e-mail na: info@jizerskechaty.cz
Po odeslání poptávky vám zašleme e-mail s informacemi o ceně a platebními údaji k úhradě rezervačního poplatku. Odesláním formuláře potvrzujete, že jste se seznámil/a se smluvními podmínkami, provozním řádem a zásadami GDPR.
Ceník ubytování / pronájmu Smrž 2
Nabídka na rok 2026 od soboty do soboty
Nabídka na rok 2027 od soboty do soboty
Ceny za týden / celá chata
Rok 2026: 54 000 Kč – týdenní pobyty
Rok 2027: 57 000 Kč – týdenní pobyty
Ceny pro svátky a krátkodobé pobyty vám rádi zašleme na vyžádání.































